
Cet ancien corps de ferme conservé dans son environnement rural, accueille depuis 1976 les séniors. Le site c’est agrandi vingt ans plus tard d’un immeuble R+3, composé de petites chambres et d’une salle de restauration en rez de chaussé.
Mission:
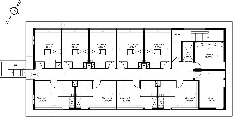
Offrir des chambres plus grandes avec leur salle de bains privatives, en tenant compte des normes d’accessibilité.
Agrandissement de la salle de restauration.
Contraintes:
Prendre en compte une intervention rapide par étage. Les résidents resteraient présents durant l’opération.
S’implanter dans la trame structurelle existante.
Proposition:
Utiliser l’espace d’une chambre pour en faire deux salles de bains des chambres juxtaposées.
Surélever d’un attique redistribuant les chambres supprimées.
Offrir un espace de restauration plus généreux, redirigé vers le parc.
Mon leitmotive était d’orienté les vues sur la campagne vierge de vis à vis.
DAMIGNY
La Rimblière
Stage - 2010
MAISON DE RETRAITE







Décrivez votre image

Décrivez votre image

Décrivez votre image
2015 © élodie maignan architecte d.é. + 33 07 81 55 06 23

